Ugira LT
Stiklo pluošto laikiklis su papildomais standumo elementais (STV)
Stiklo pluošto laikiklis su papildomais standumo elementais (STV)
Impossible de charger la disponibilité du service de retrait
Galite rinktis iš mūsų tipinių gaminių, tačiau esant poreikiui, galime pagaminti ir nestandartinius laikiklius, pagal Jūsų brėžinį ar pateiktą informaciją.
WHAT IS IT?
WHAT IS IT?
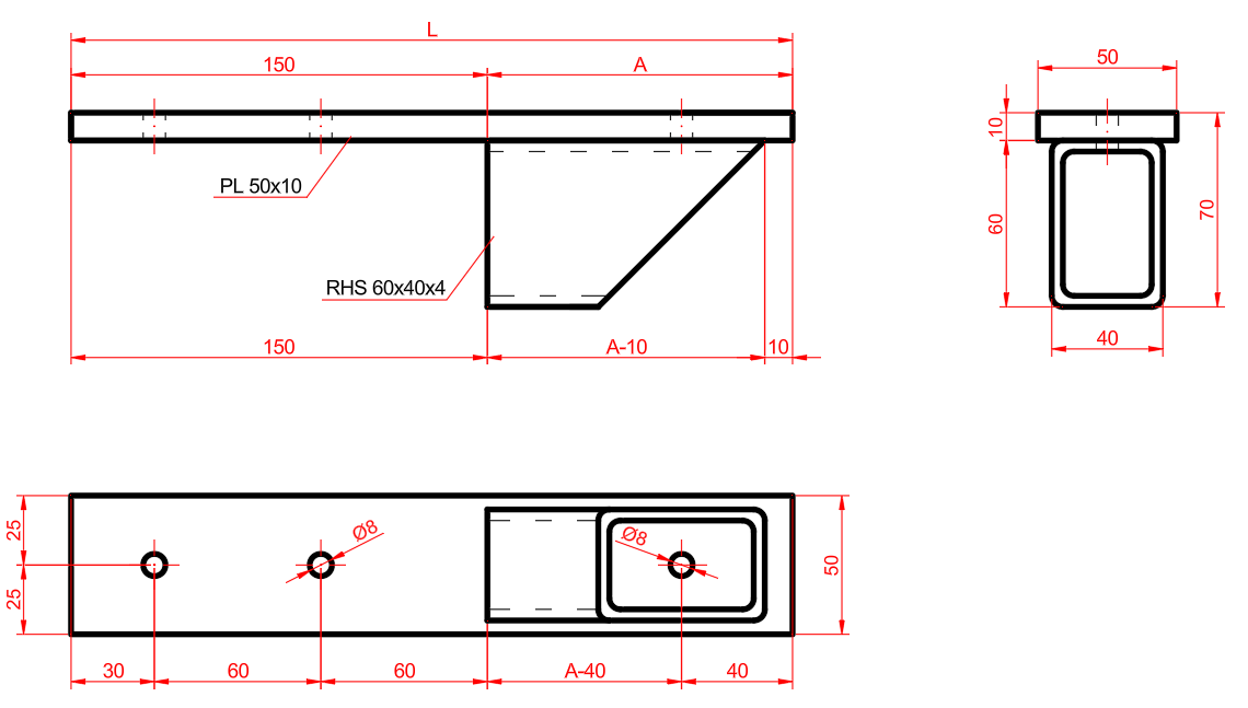
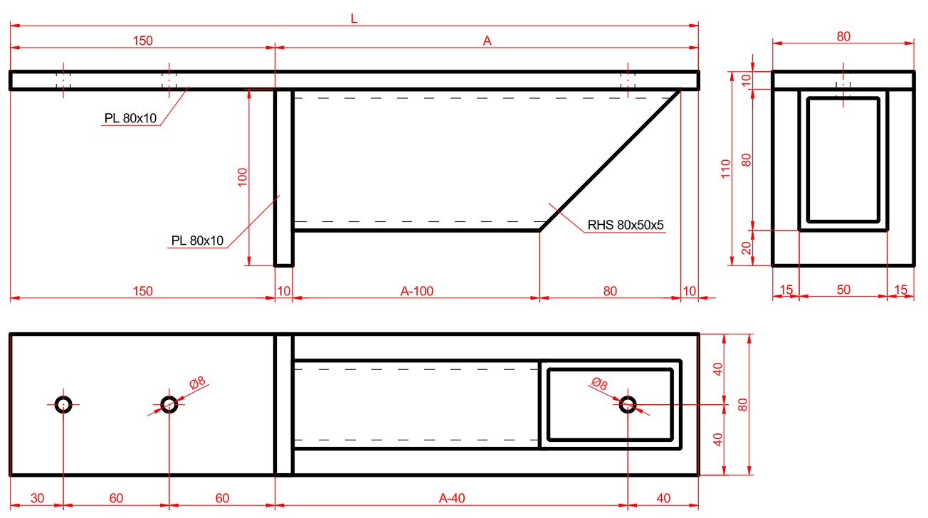
Fiberglass brackets (consoles) are designed for installing windows in the insulation layer. Their basis is a fiberglass strip, and the RHS profile is used as a rigidity support.
CHARACTERISTICS
CHARACTERISTICS
- Extremely low thermal conductivity.
- High strength.
- Low weight.
- Resistance to corrosion, chemicals and UV rays.
- Non-conductive to electric current.
- Non-interference with electromagnetic fields.
The products manufactured by Ugira LT meet the requirements of class E23, given in the standard EN 13706.
MORE INFO
MORE INFO
If you don't see what you need, we can manufacture holders according to your drawing. Please contact us in a way convenient for you (phone +37064669323; email sales@ugira.com).
DELIVERY
DELIVERY
Orders are delivered using DPD or Venipak - courier services.
Delivery time: 2-5 working days from the order payment.
It is possible to pick up the order at: Varpo str. 43, Šunskai, Marijampolė
mu
Share





















